|
| 大阪市淀川区西中島 5丁目
事務所 |
面積 |
賃料 |
共益費 |
月額合計 |
地下鉄御堂筋線 「
新大阪 」駅 徒歩
4分
JR東海道本線 「
新大阪 」駅 徒歩
3分 |
72.89 坪 (
240.96 u) |
¥801,790 |
¥240,537 |
¥1,042,327 |
|
| |
| 建物概要 |
| 物件番号 |
WY0115-04 |
| 種 別 |
事務所
|
| 名 称 |
新大阪谷ビル |
| 所 在 地 |
大阪市淀川区 西中島 5 丁目
|
| 用途地域 |
|
| 交 通 |
地下鉄御堂筋線 「
新大阪 」駅 徒歩
4分
JR東海道本線 「
新大阪 」駅 徒歩
3分 |
| 竣工年月 |
平成 1 年(
1989 )
3 月
|
| 構 造 |
鉄骨造
地上
10 階
/地下
1 階
建 |
|
| 募集条件 |
| 階/号室 |
2 階/
ワンフロア |
保証金 |
¥8,746,800 |
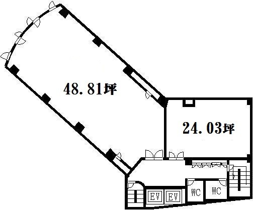
| 契約面積 |
72.89 坪 (
240.96 u) |
坪単価 |
¥120,000
|
| 実効面積 |
72.89坪 (240.96u) |
解約引 |
スライド
|
| 賃料 |
¥801,790 |
原状回復 |
要
|
| 坪単価 |
@11,000 |
駐車場 |
無
|
| 共益費 |
¥240,537 |
保証金 |
|
| 坪単価 |
@3,300 |
月額 |
|
| 合計 |
¥1,042,327 |
敷引 |
|
※上記表示条件は募集価格です。詳細については お問い合わせください。
※金額はすべて税込表示です。 |
| 設 備 |
| エレベーター |
有 2基 |
オートロック |
無 |
| 光ファイバー |
有 共用部分引込済み |
24時間使用 |
可能 |
| セキュリティ |
機械警備 |
日祝使用 |
可能 |
| OAフロアー |
施工済 |
天井高 |
- |
| 管理人 |
有 |
空調 |
個別空調 |
| 貸会議室 |
|
|
|
|
|
|
| 備 考 |
★ 拡大移転・経費削減・環境改善お任せ下さい!
☆ 空室状況・詳細は、お気軽にお問合せください
★ 条件交渉お任せ下さい !!
★ 分割使用可
★ 保証金引=5年未満20%・10年未満10%・以上無し
|
|
| |
 |
お問合せは
大阪府知事(3)第54689号
株式会社ワークス・リアルエステート
大阪府大阪市淀川区西中島5-6-13 新大阪御幸ビル2F
TEL
06-6305-1919 FAX
06-6305-6262
E-mail: works@shin-osaka.info 取引態様: 媒介 |
免責事項
※掲載中に成約済・募集取り止めになる場合がございますので予めご了承ください。
※貸主の希望により賃貸条件が問い合わせになっている場合がございますので、金額についてはお問合せください。
※当サイトの内容並びに金額その他の項目に掲載過ちがある場合はご容赦ください。判明次第すぐに訂正いたします。
|
|