|
HOME
|
貸事務所
|
SOHO
|
貸倉庫
|
貸店舗
|
物件リクエスト
|
不動産用語集
|
オフィスレポート
|
オフィス移転スケジュール
|
スタッフ紹介
|
会社概要
|
物件リクエスト
新大阪
淀屋橋・北浜
天満橋・谷町四丁目
四ツ橋・なんば
西梅田・大阪
新築オフィス
ワンフロアーワンテナント
ハイクオリティオフィス
ローコストオフィス
一棟貸しビル
SOHOオフィス
所在地
指定なし
大阪市北区
大阪市中央区
大阪市西区
大阪市淀川区
大阪市東淀川区
大阪市福島区
大阪市浪速区
大阪市天王寺区
沿線
指定なし
御堂筋線
谷町線
中央線
堺筋線
四つ橋線
長堀鶴見緑地線
千日前線
北大阪急行
賃料
〜
万円
坪数
〜
坪
今話題の注目物件 徹底レポート!
貸事務所・賃貸オフィスの
お役立ち不動産用語集
スタッフ紹介
中島第2ビル
更新日: 2012-04-12
所在地:大阪市淀川区西中島5丁目2-5
交通:地下鉄御堂筋線「新大阪」6分
★ 落着きのファオルム!エントランスに癒しのBGMが流れ・セキュリティも充実のオフィスビル!
キャンペーン中につき諸条件相談可能・是非この機会に内覧下さい!!
外観はとても落ち着いた茶系のタイル張りで 重厚感も兼ね備えています。
構造 鉄骨造
地上9階建・地下1階
竣工 昭和60年12月
設備 EV 2基
個別空調
光ファイバー
機械警備(EV・カード制御)
管理人常駐
駐車場(機械式・2段)
喫煙室有(5F)
セコム
1F正面玄関
1Fエントランス
各階共用廊下
6F・8坪〜室内写真
2F・13坪〜室内写真
7F・56坪〜室内写真
EVセキュリティーシステム(カード又はインターフォンでEV作動します。)
愛煙家の為には無くてはならない設備です。(自販機設置)
駐車場(2段式)
1Fフロアー図面
2Fフロアー図面
4Fフロアー図面
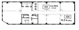
5Fフロアー図面
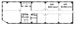
6Fフロアー図面
7Fフロアー図面
最新のオフィスレポート
堺筋ベストビル
大阪市中央区南船場1丁目16-13
本町ガーデンシティ
大阪市中央区本町3丁目6-4
田村駒ビル
大阪市中央区安土町3丁目3-9
中島第2ビル
大阪市淀川区西中島5丁目2-5
物産ビル
大阪市淀川区西中島3丁目 10-13
コフレ梅田
大阪市北区曾根崎2丁目12-1
NLC新大阪18号館
大阪市淀川区西中島3-18-21
新大阪丸ビル別館
大阪市東淀川区東中島1-18-22
御堂筋MIDビル
大阪市中央区南船場4丁目3-2
肥後橋センタービル
大阪市西区江戸堀1-9-1
谷町ビル
大阪市中央区谷町2丁目6-4
Copyright (C) 2009 ワークス・リアルエステート All Rights Reserved.
貸事務所・賃貸オフィスの事業用不動産専用サイト